Casa semindipendente in vendita

Campegine, Via Fermi - Caprara
€ 210.000
5 locali 5 locali
150 Mq 150 Mq
2 bagni 2 bagni

Casa semindipendente in vendita

Campegine, Via Fermi - Caprara

Descrizione annuncio

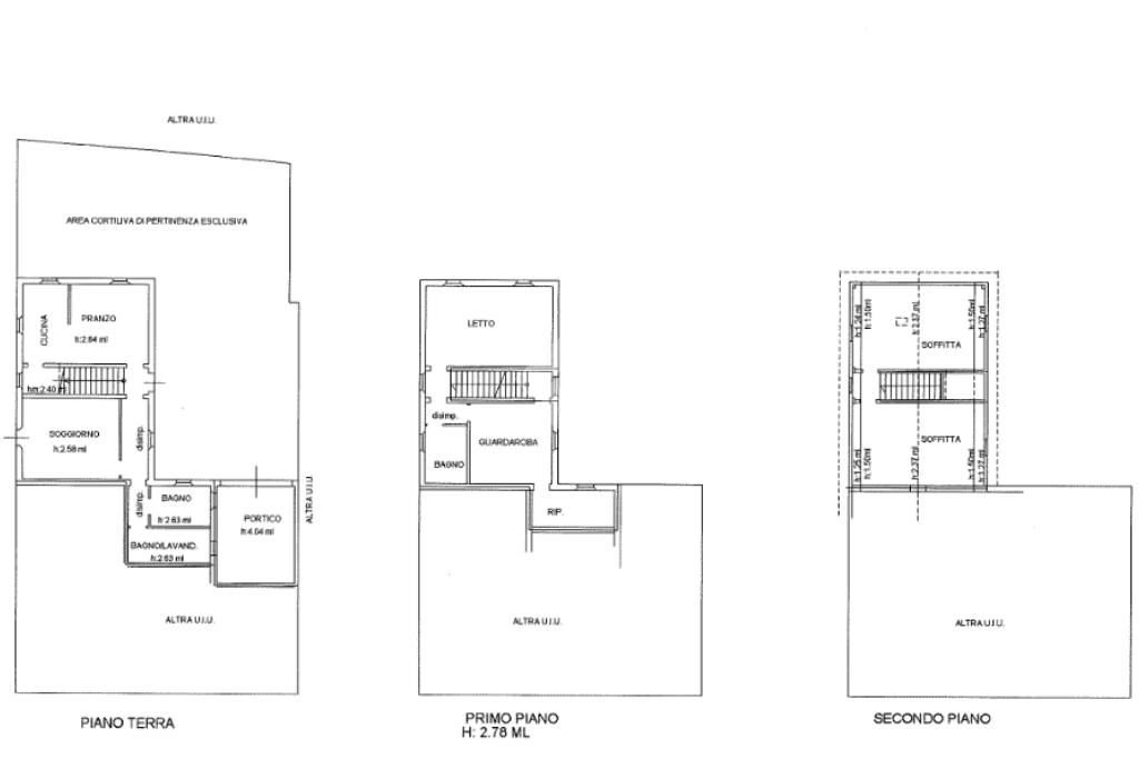
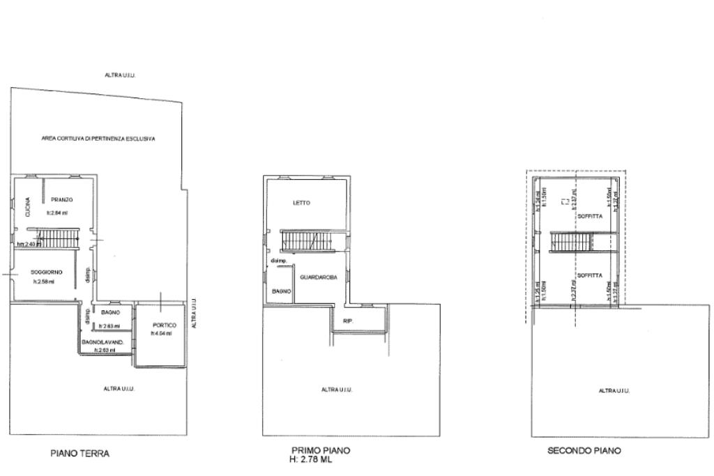
CAMPEGINE- CASA SEMINDIPENDENTE CON AMPIA AREA CORTILIVA DI PROPRIETA'.

Ci troviamo in una soluzione indipendente da terra a tetto e questa porzione di casa è stata ristrutturata negli anni mantenendo quello stile rustico che caratterizzava i casali di fine '800.

Entrando dal cortile, completamente pavimentato, troviamo un ampia zona giorno composta da soggiorno con camino, sala da pranzo e cucinotto. Al piano terreno troviamo poi un comodo bagno, una lavanderia e un portico coperto che all'occorenza può fungere anche da garage.

Salendo le scale troviamo tre camere da letto, due matrimoniali, di cui una con cabina armadio ed una singola. Il bagno con doccia completamente rifatto è molto ampio.

Di pertinenza abbiamo poi due stanze mansardate al secondo piano.

CANCELLO AUTOMATIZZATO, TETTO RIFATTO NEL 2013, INFISSI CON DOPPIO VETRO IN ALLUMINIO, SCURI ESTERNI, CALDAIA SOSTITUITA NEL 2005.

PER MAGGIORI INFORMAZIONI O FISSARE UN APPUNTAMENTO CHIAMACI AL 0522.1963669

Mostra tutto

Nelle vicinanze

Trasporto pubblico Trasporto pubblico
Trasporto pubblico
2,0 Km
Scuole Scuole
Scuole
1,1 Km
Farmacia Farmacia
Farmacia
1,3 Km
Supermercati Supermercati
COOP
1,0 Km
Supermercati
1,5 Km
Negozi Negozi
OK SIGMA
1,5 Km
Bar Bar
Bar
1,7 Km
Ristoranti Ristoranti
Ristorante Il Porto
110 m
Ristoranti
220 m
Mostra tutto

Caratteristiche

Rif.:
61133181
Piano:
Su più livelli di 2
Totale piani:
2
Box:
1
Posti auto:
1
Camere da letto:
3
Mostra tutto
Prezzo Prezzo
€ 210.000
Rata mutuo Rata mutuo
€ 998 / mese
Proponi il tuo prezzoProponi il tuo prezzo

Classe Energetica

F
F
F
F
F
F
F
F
F
EP globale non rinnovabile:
250.00 kW h/m² anno
EP globale rinnovabile:
250.00 kW h/m² anno
EP invernale del fabbricato:
EP estiva del fabbricato:
Anno di costruzione:
1967
Riscaldamento:
Autonomo
Tipo impianto:
A radiatori
Tipo alimentazione:
Metano

Ti interessa visionare l'immobile?

Fissa un appuntamento  Fissa un appuntamento

Richiedi informazioni

Clicca su Leggi per aprire l'informativa
* Questi campi sono obbligatori

Calcola il tuo mutuo

Semplice e senza impegno
Anticipo

( % )
Mutuo

( % )

pochi semplici passi

inserisci i tuoi dati
Questionario completato
Grazie per aver richiesto un appuntamento senza impegno con un nostro Consulente del Credito e Assicurativo.

Hai inserito correttamente tutti i dati necessari e a breve riceverai una e-mail con un link da convalidare per inviare i tuoi dati.
Affiliato
Immobiliare Omega Srl
Via XXV Aprile, 17 42024 Castelnovo Di Sotto (RE)

Il nostro staff


  • Fabio Valentini
    Affiliato

  • Sofia Carraro
    Collaboratrice

  • Piero Ruffino
    Responsabile
Via XXV Aprile, 17 42024 Castelnovo Di Sotto (RE)
Zona: Castelnovo di Sotto-Poviglio-Campegine-Gattatico
Mostra su mappa
Orari: Dal lunedì al venerdì dalle ore 9 alle ore 13 e dalle ore 15 alle ore 20. Sabato dalle ore 9 alle ore 13 e dalle ore 15 alle ore 18
Affiliato
Immobiliare Omega Srl
Via XXV Aprile, 17 42024 Castelnovo Di Sotto (RE)

2026 Tecnocasa Franchising S.p.A. - P. IVA 08365160152 - Via Monte Bianco 60/A 20089 Rozzano (MI). Ogni agenzia ha un proprio titolare ed è autonoma. Privacy policy | Policy utilizzo | Cookie policy