Bifamiliare in vendita

Campegine, Via Tito
€ 230.000
8 locali 8 locali
500 Mq 500 Mq
3 bagni 3 bagni

Bifamiliare in vendita

Campegine, Via Tito

Descrizione annuncio

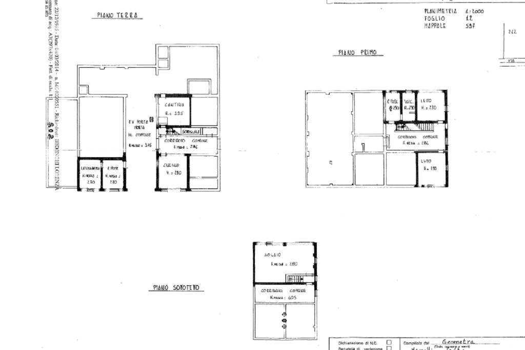
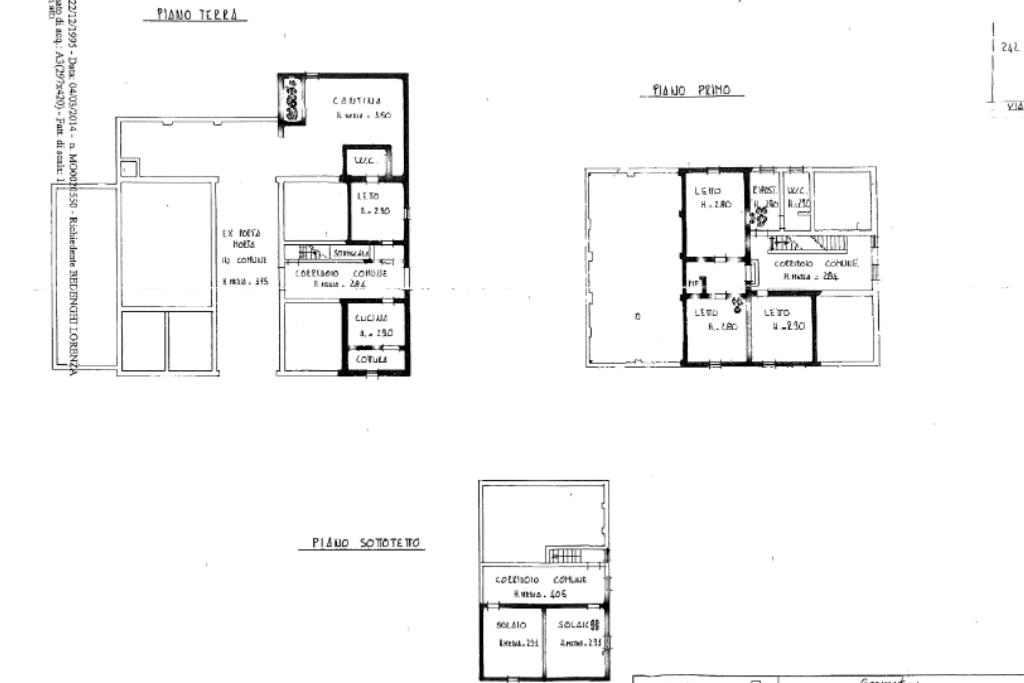
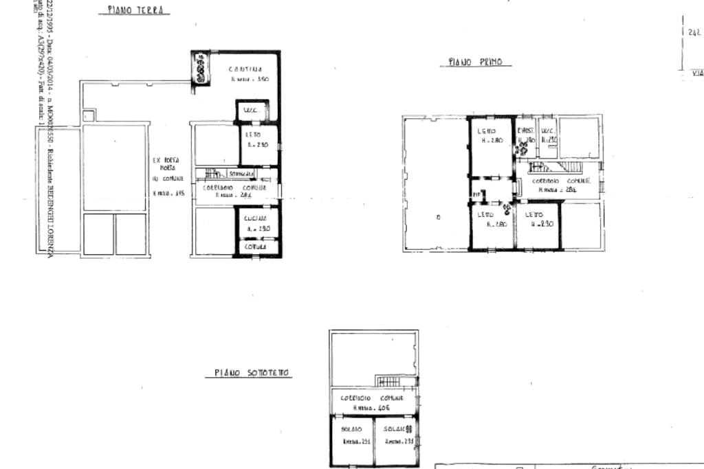
CAMPEGINE- RUSTICO BIFAMILIARE CON AMPIO TERRENO DI PERTINENZA.

Siamo a due passi dal centro, vicinissimi a tutti i servizi, comodamente raggiungibili a piedi e circondati da aree verdi.

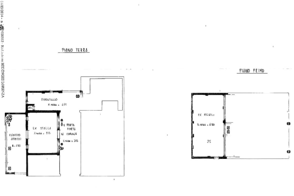
Proponiamo una casa composta da due unità abitative, oltre al portico e all'ex stalla ed ex fienile.

La casa è libera sui 4 lati, gode quindi di un'esposizione totale ed è completamente circondata dal terreno di proprietà di oltre 4000 mq.

L'ingresso è quello classico delle casa padronali con portico che collega l'abitazione con l'ex stalla sfruttabile come taverna da godersi con gli amici o in famiglia.

In questa soluzione abiamo poi diversi servizi al piano terra adibiti a cantina, lavanderia, laboratorio, magazzino e deposito/officina.

Entrando nell'abitazione veniamo accolti da questo enorme corridoio che ci collega con entrmabe le abitazioni, infatti qui troviamo le due cucine oltre che un bagno ed una comoda camera da letto matrimoniale.

Al piano primo abbiamo ben 5 camere da letto matrimoniali in totale ed un bagno con doccia.

Di pertinenza abbiamo il classico solaio.

L'ampio portico al piano terra è sfruttabilissimo anche come garage per più posti auto.

L'immobile è ideale come soluzione genitori/figli e ben si presta ad ospitare nuclei familiari numerosi.

PER MAGGIORI INFORMAZIONI O FISSARE UN APPUNTAMENTO CHIAMACI AL 0522.1963669

Mostra tutto

Nelle vicinanze

Trasporto pubblico Trasporto pubblico
Trasporto pubblico
2,0 Km
Scuole Scuole
Scuole
400 m
Farmacia Farmacia
Farmacia
170 m
Supermercati Supermercati
Supermercati
70 m
COOP
460 m
Negozi Negozi
OK SIGMA
60 m
Bar Bar
Bar
200 m
Ristoranti Ristoranti
Ristorante Il Porto
1,6 Km
Ristoranti
1,6 Km
Mostra tutto

Caratteristiche

Rif.:
61128411
Piano:
3 di 3 (Piano su più livelli)
Posti auto:
3
Camere da letto:
6
Arredamento:
Parziale
Condizionamento:
Autonomo
Mostra tutto
Prezzo Prezzo
€ 230.000
Rata mutuo Rata mutuo
€ 1.086 / mese
Spese annue Spese annue
€ 0
Proponi il tuo prezzoProponi il tuo prezzo

Classe Energetica

G
G
G
G
G
G
G
G
G
EP globale non rinnovabile:
300.00 kW h/m² anno
EP globale rinnovabile:
300.00 kW h/m² anno
EP invernale del fabbricato:
EP estiva del fabbricato:
Anno di costruzione:
1930
Riscaldamento:
Autonomo
Tipo impianto:
A radiatori
Tipo alimentazione:
Metano

Ti interessa visionare l'immobile?

Fissa un appuntamento  Fissa un appuntamento

Richiedi informazioni

Clicca su Leggi per aprire l'informativa
* Questi campi sono obbligatori

Calcola il tuo mutuo

Semplice e senza impegno
Anticipo

( % )
Mutuo

( % )

pochi semplici passi

inserisci i tuoi dati
Questionario completato
Grazie per aver richiesto un appuntamento senza impegno con un nostro Consulente del Credito e Assicurativo.

Hai inserito correttamente tutti i dati necessari e a breve riceverai una e-mail con un link da convalidare per inviare i tuoi dati.
Affiliato
Immobiliare Omega Srl
Via XXV Aprile, 17 42024 Castelnovo Di Sotto (RE)

Il nostro staff


  • Fabio Valentini
    Affiliato

  • Sofia Carraro
    Collaboratrice

  • Piero Ruffino
    Affiliato
Via XXV Aprile, 17 42024 Castelnovo Di Sotto (RE)
Zona: Castelnovo di Sotto-Poviglio-Campegine-Gattatico
Mostra su mappa
Orari: Dal lunedì al venerdì dalle ore 9 alle ore 13 e dalle ore 15 alle ore 20. Sabato dalle ore 9 alle ore 13 e dalle ore 15 alle ore 18
Affiliato
Immobiliare Omega Srl
Via XXV Aprile, 17 42024 Castelnovo Di Sotto (RE)

2025 Tecnocasa Franchising S.p.A. - P. IVA 08365160152 - Via Monte Bianco 60/A 20089 Rozzano (MI). Ogni agenzia ha un proprio titolare ed è autonoma. Privacy policy | Policy utilizzo | Cookie policy