Quadrilocale in vendita

Castelnovo Di Sotto, Via G. Leopardi
€ 129.000
4 locali 4 locali
100 Mq 100 Mq
1 bagno 1 bagno

Quadrilocale in vendita

Castelnovo Di Sotto, Via G. Leopardi

Descrizione annuncio

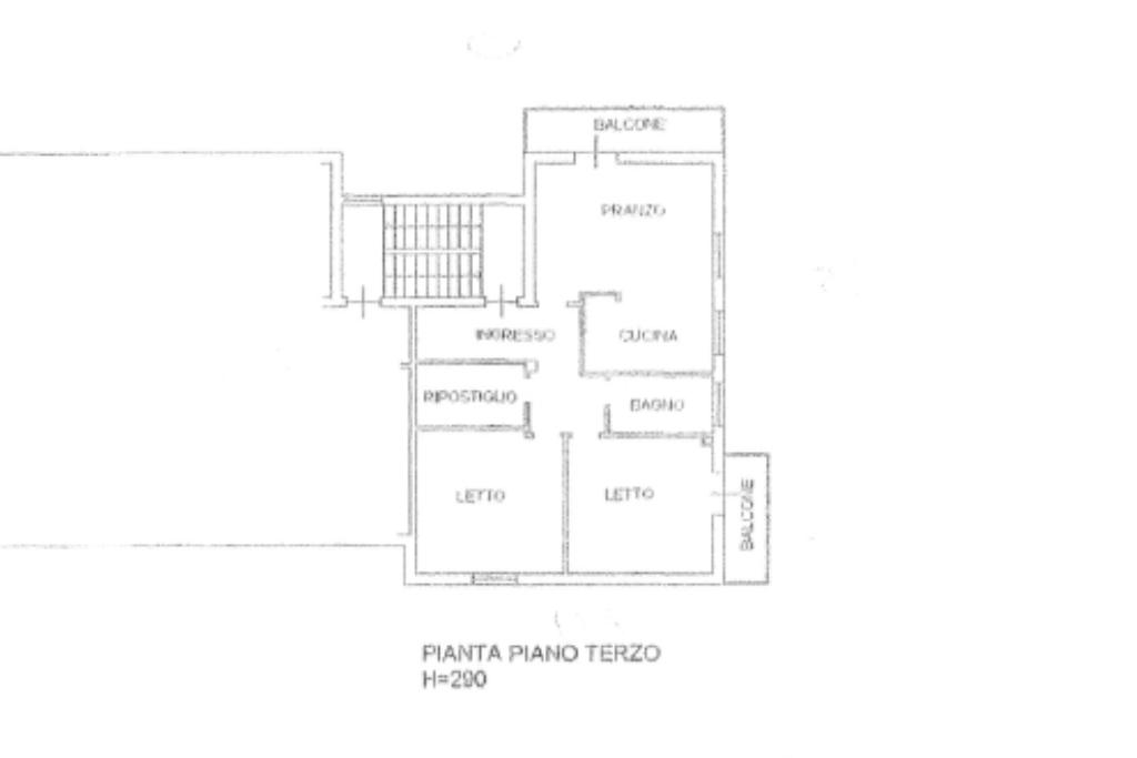
CASTELNOVO DI SOTTO- APPARTAMENTO DI AMPIE METRATURE CON DUE CAMERE MATRIMONIALI IN ZONA POSTE.

In zona centrale, a due passi dalla piazza del paese, proponiamo un appartamento posto al terzo piano in un contesto con basse spese condominiali.

Proponiamo un quadrilocale ben curato e completo di cantina e garage.

L'immobile è composto da ingresso, cucina abitabile open, soggiorno con loggia, due camere da letto matrimoniali di cui una con loggia, bagno con doccia e ripostiglio.

Sono presenti zanzariere, aria condizionata che fa anche da pompa di calore, porta blindata, CALDAIA A CONDENSAZIONE MONTATA NEL 2022, INFISSI IN PVC CON DOPPIO VETRO INSTALLATI NEL 2018.

Completano l'immobile la lavanderia comune, il garage e la cantina.

PER MAGGIORI INFORMAZIONI O PER FISSARE UNA VISITA PRIVATA CHIAMACI AL 0522.1963669

Mostra tutto

Nelle vicinanze

Supermercati Supermercati
COOP
540 m
Sigma
580 m
Mostra tutto

Caratteristiche

Rif.:
61123707
Piano:
3 di 4 (Piano medio)
Box:
1
Balconi:
2
Camere da letto:
2
Arredamento:
Assente
Mostra tutto
Prezzo Prezzo
€ 129.000
Rata mutuo Rata mutuo
€ 609 / mese
Spese annue Spese annue
€ 600
Proponi il tuo prezzoProponi il tuo prezzo

Classe Energetica

G
G
G
G
G
G
G
G
G
EP globale non rinnovabile:
318.00 kW h/m² anno
EP globale rinnovabile:
318.00 kW h/m² anno
EP invernale del fabbricato:
EP estiva del fabbricato:
Anno di costruzione:
1967
Riscaldamento:
Autonomo
Tipo impianto:
A radiatori
Tipo alimentazione:
Metano

Ti interessa visionare l'immobile?

Fissa un appuntamento  Fissa un appuntamento

Richiedi informazioni

Clicca su Leggi per aprire l'informativa
* Questi campi sono obbligatori

Calcola il tuo mutuo

Semplice e senza impegno
Anticipo

( % )
Mutuo

( % )

pochi semplici passi

inserisci i tuoi dati
Questionario completato
Grazie per aver richiesto un appuntamento senza impegno con un nostro Consulente del Credito e Assicurativo.

Hai inserito correttamente tutti i dati necessari e a breve riceverai una e-mail con un link da convalidare per inviare i tuoi dati.
Affiliato
Immobiliare Omega Srl
Via XXV Aprile, 17 42024 Castelnovo Di Sotto (RE)

Il nostro staff


  • Fabio Valentini
    Affiliato

  • Sofia Carraro
    Collaboratrice

  • Piero Ruffino
    Affiliato
Via XXV Aprile, 17 42024 Castelnovo Di Sotto (RE)
Zona: Castelnovo di Sotto-Poviglio-Campegine-Gattatico
Mostra su mappa
Orari: Dal lunedì al venerdì dalle ore 9 alle ore 13 e dalle ore 15 alle ore 20. Sabato dalle ore 9 alle ore 13 e dalle ore 15 alle ore 18
Affiliato
Immobiliare Omega Srl
Via XXV Aprile, 17 42024 Castelnovo Di Sotto (RE)

2025 Tecnocasa Franchising S.p.A. - P. IVA 08365160152 - Via Monte Bianco 60/A 20089 Rozzano (MI). Ogni agenzia ha un proprio titolare ed è autonoma. Privacy policy | Policy utilizzo | Cookie policy