Porzione di bifamiliare in vendita

Castelnovo Di Sotto, Via Giotto
€ 280.000
5 locali 5 locali
200 Mq 200 Mq
3 bagni 3 bagni

Porzione di bifamiliare in vendita

Castelnovo Di Sotto, Via Giotto

Descrizione annuncio

CASTELNOVO DI SOTTO-


!!!ULTIMA SOLUZIONE DISPONIBILE!!!

VILLETTA ABBINATA DI NUOVA COSTRUZIONE CON GIARDINO PRIVATO E VISTA SU PARCO.



Ci troviamo in un quartiere residenziale, circondati da case singole e bifamiliari di nuova costruzione, parchi adiacenti e servito dal trasporto pubblico.


Questa villetta è stata realizzata applicando sistemi e accorgimenti energetici sia per quanto riguarda l'isolamento termico che gli impianti, tra cui riscaldamento a pavimento e predisposizione per il solare termico.


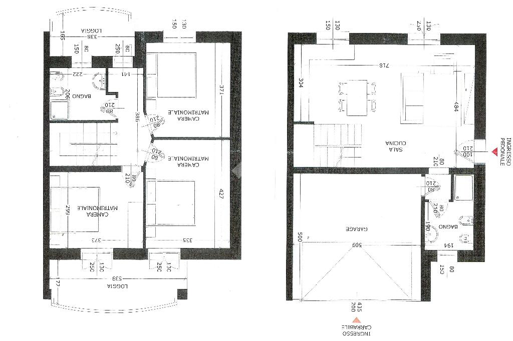
L'immobile si sviluppa su tre livelli.

Al Piano terra è presente un ampia zona giorno open space che affaccia sul giardino privato su due lati. A questo piano è presente anche un bagno di servizio e un garage doppio con accesso diretto alla casa.


Il primo livello è adibito a zona notte ed è costituito da tre ampie camere da letto, due delle quali affacciano su una loggia, ed un comodo bagno.

Al secondo livello, mansardato alto con travi in legno a vista, sono presenti una camera, un bagno/lavanderia e un ampio spazio che può essere utilizzato per diverse funzioni a seconda delle esigenze della famiglia.


Le finiture sono tutte personalizzabili, inoltre il capitolato offre ampia scelta di materiali e sistemi di posa.

Il prezzo di vendita s'intende per la casa completa di tutte le finiture, pavimenti, porte e rivestimenti scelti direttamente da voi visitando lo showroom a vostra disposizione.

PER MAGGIORI INFORMAZIONI O FISSARE UN APPUNTAMENTO CHIAMA AL 340.3341846

Mostra tutto

Nelle vicinanze

Supermercati Supermercati
COOP
530 m
Sigma
710 m
Mostra tutto

Caratteristiche

Rif.:
60500689
Piano:
3 di 3 (Piano su più livelli)
Box:
2
Terrazzi:
2
Camere da letto:
4
Arredamento:
Assente
Mostra tutto
Prezzo Prezzo
€ 280.000
Rata mutuo Rata mutuo
€ 1.322 / mese
Spese annue Spese annue
€ 0
Proponi il tuo prezzoProponi il tuo prezzo

Classe Energetica

C
C
C
C
C
C
C
C
C
EP globale non rinnovabile:
70.30 kW h/m² anno
EP globale rinnovabile:
70.30 kW h/m² anno
EP invernale del fabbricato:
EP estiva del fabbricato:
Anno di costruzione:
2020
Riscaldamento:
Autonomo
Tipo impianto:
A pavimento
Tipo alimentazione:
Metano

Ti interessa visionare l'immobile?

Fissa un appuntamento  Fissa un appuntamento

Richiedi informazioni

Clicca su Leggi per aprire l'informativa
* Questi campi sono obbligatori

Calcola il tuo mutuo

Semplice e senza impegno
Anticipo

( % )
Mutuo

( % )

pochi semplici passi

inserisci i tuoi dati
Questionario completato
Grazie per aver richiesto un appuntamento senza impegno con un nostro Consulente del Credito e Assicurativo.

Hai inserito correttamente tutti i dati necessari e a breve riceverai una e-mail con un link da convalidare per inviare i tuoi dati.
Affiliato
Immobiliare Omega Srl
Via XXV Aprile, 17 42024 Castelnovo Di Sotto (RE)

Il nostro staff


  • Fabio Valentini
    Affiliato

  • Sofia Carraro
    Collaboratrice

  • Piero Ruffino
    Affiliato
Via XXV Aprile, 17 42024 Castelnovo Di Sotto (RE)
Zona: Castelnovo di Sotto-Poviglio-Campegine-Gattatico
Mostra su mappa
Orari: Dal lunedì al venerdì dalle ore 9 alle ore 13 e dalle ore 15 alle ore 20. Sabato dalle ore 9 alle ore 13 e dalle ore 15 alle ore 18
Affiliato
Immobiliare Omega Srl
Via XXV Aprile, 17 42024 Castelnovo Di Sotto (RE)

2025 Tecnocasa Franchising S.p.A. - P. IVA 08365160152 - Via Monte Bianco 60/A 20089 Rozzano (MI). Ogni agenzia ha un proprio titolare ed è autonoma. Privacy policy | Policy utilizzo | Cookie policy