Casa indipendente in vendita

Gattatico, Via Ercole Pisi - Praticello
€ 255.000
10 locali 10 locali
200 Mq 200 Mq
2 bagni 2 bagni

Casa indipendente in vendita

Gattatico, Via Ercole Pisi - Praticello

Descrizione annuncio

PRATICELLO- CASA SINGOLA IN ZONA CENTRALE LIBERA SU QUATTRO LATI CON GIARDINO. IDEALE ANCHE COME BIFAMILIARE.

Siamo a due passi dal centro, vicinissimi a tutti i servizi, comodamente raggiungibili a piedi e circondati da aree verdi.

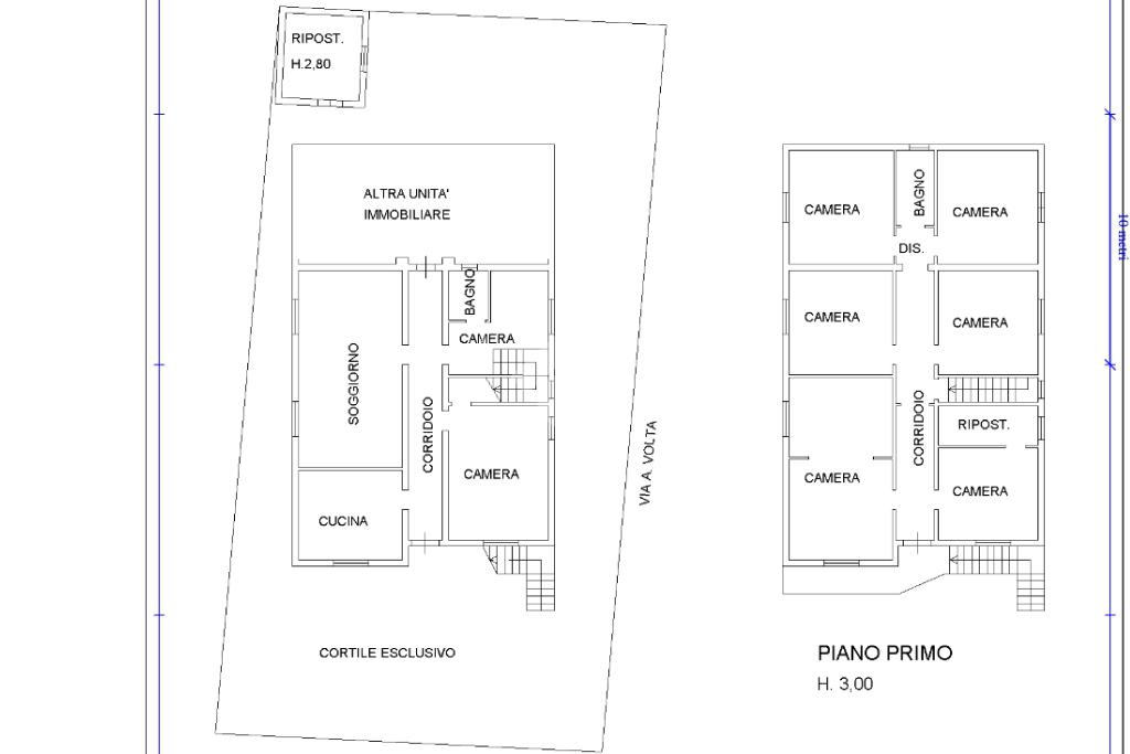
Proponiamo una casa indipendente che può diventare l'ideale anche per due unità abitative, una al piano terreno più piccola e l'altra al 1° piano con addirittura quattro camere da letto.

Entrambe con ingresso indipendente.

La casa è libera sui 4 lati, gode quindi di un'esposizione totale ed è completamente circondata dall'area cortiliva di proprietà.

Dal giardino saliamo al primo piano percorrendo la scala esterna, qua troviamo un soggiorno doppio e la sala da pranzo direttamente collegata con il cucinotto. Seguendo il corridoio troviamo il bagno con vasca e ben quattro camere da letto, tutte matrimoniali.

Scendendo al piano terra tramite las cala interna troviamo un ampio salone utilizzabile anche come tavena e dotato di camino. Qua troviamo poi un secondo bagno, una lavanderia e una seconda cucina.

Di pertinenza abbiamo poi il garage triplo. In corpo staccato abbiamo un basso servizio sfruttabile come ricovero attrezzi o legnaia.

L'immobile è ideale come soluzione genitori/figli e ben si presta ad ospitare nuclei familiari numerosi.

PER MAGGIORI INFORMAZIONI O FISSARE UN APPUNTAMENTO CHIAMACI AL 0522.1963669

Mostra tutto

Nelle vicinanze

Trasporto pubblico Trasporto pubblico
Trasporto pubblico
2,6 Km
Scuole Scuole
Scuola Primaria "A. Sabin"
110 m
Scuole
210 m
Scuola Materna "Girasole"
270 m
Farmacia Farmacia
Farmacia
290 m
Supermercati Supermercati
Sigma Super Day
70 m
Negozi Negozi
Negozi
280 m
Bar Bar
Bar
280 m
Ristoranti Ristoranti
Ristoranti
380 m
IL Moretto
1,9 Km
Mostra tutto

Caratteristiche

Rif.:
61145950
Piano:
2 di 2 (Piano su più livelli)
Box:
3
Posti auto:
2
Balconi:
1
Camere da letto:
5
Mostra tutto
Prezzo Prezzo
€ 255.000
Rata mutuo Rata mutuo
€ 1.211 / mese
Spese annue Spese annue
€ 0
Proponi il tuo prezzoProponi il tuo prezzo

Classe Energetica

F
F
F
F
F
F
F
F
F
EP globale non rinnovabile:
220.00 kW h/m² anno
EP globale rinnovabile:
220.00 kW h/m² anno
EP invernale del fabbricato:
EP estiva del fabbricato:
Anno di costruzione:
1970
Riscaldamento:
Autonomo
Tipo impianto:
A radiatori
Tipo alimentazione:
Metano

Ti interessa visionare l'immobile?

Fissa un appuntamento  Fissa un appuntamento

Richiedi informazioni

Clicca su Leggi per aprire l'informativa
* Questi campi sono obbligatori

Calcola il tuo mutuo

Semplice e senza impegno
Anticipo

( % )
Mutuo

( % )

pochi semplici passi

inserisci i tuoi dati
Questionario completato
Grazie per aver richiesto un appuntamento senza impegno con un nostro Consulente del Credito e Assicurativo.

Hai inserito correttamente tutti i dati necessari e a breve riceverai una e-mail con un link da convalidare per inviare i tuoi dati.
Affiliato
Immobiliare Omega Srl
Via XXV Aprile, 17 42024 Castelnovo Di Sotto (RE)

Il nostro staff


  • Fabio Valentini
    Affiliato

  • Sofia Carraro
    Collaboratrice

  • Piero Ruffino
    Responsabile
Via XXV Aprile, 17 42024 Castelnovo Di Sotto (RE)
Zona: Castelnovo di Sotto-Poviglio-Campegine-Gattatico
Mostra su mappa
Orari: Dal lunedì al venerdì dalle ore 9 alle ore 13 e dalle ore 15 alle ore 20. Sabato dalle ore 9 alle ore 13 e dalle ore 15 alle ore 18
Affiliato
Immobiliare Omega Srl
Via XXV Aprile, 17 42024 Castelnovo Di Sotto (RE)

2026 Tecnocasa Franchising S.p.A. - P. IVA 08365160152 - Via Monte Bianco 60/A 20089 Rozzano (MI). Ogni agenzia ha un proprio titolare ed è autonoma. Privacy policy | Policy utilizzo | Cookie policy