Casa semindipendente in vendita

Poviglio, Via Gruara
€ 240.000
5 locali 5 locali
185 Mq 185 Mq
3 bagni 3 bagni

Casa semindipendente in vendita

Poviglio, Via Gruara

Descrizione annuncio

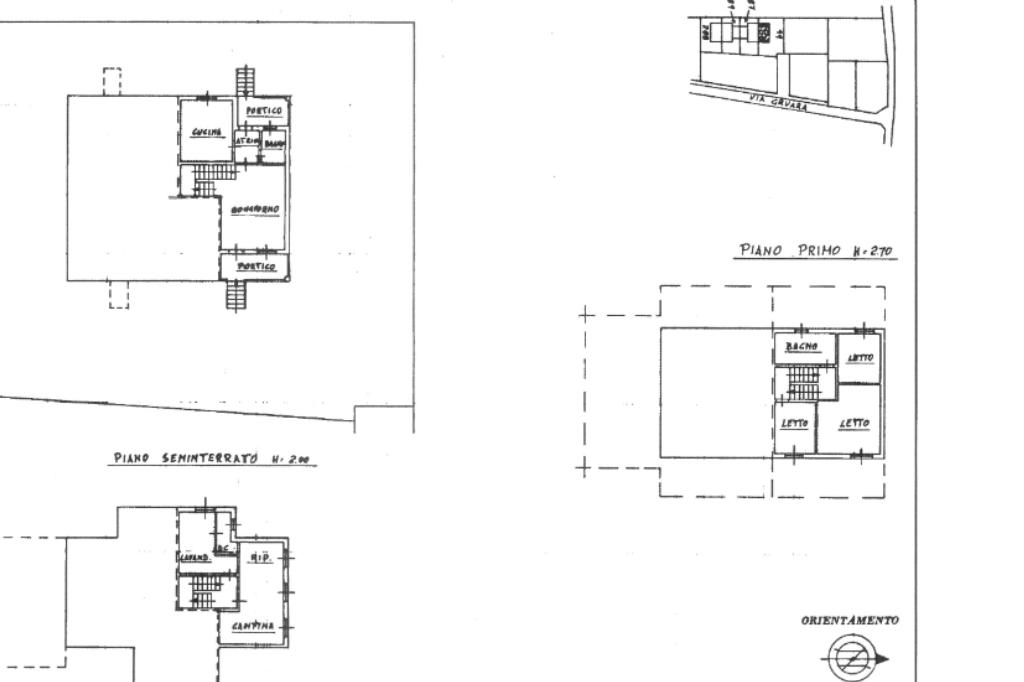
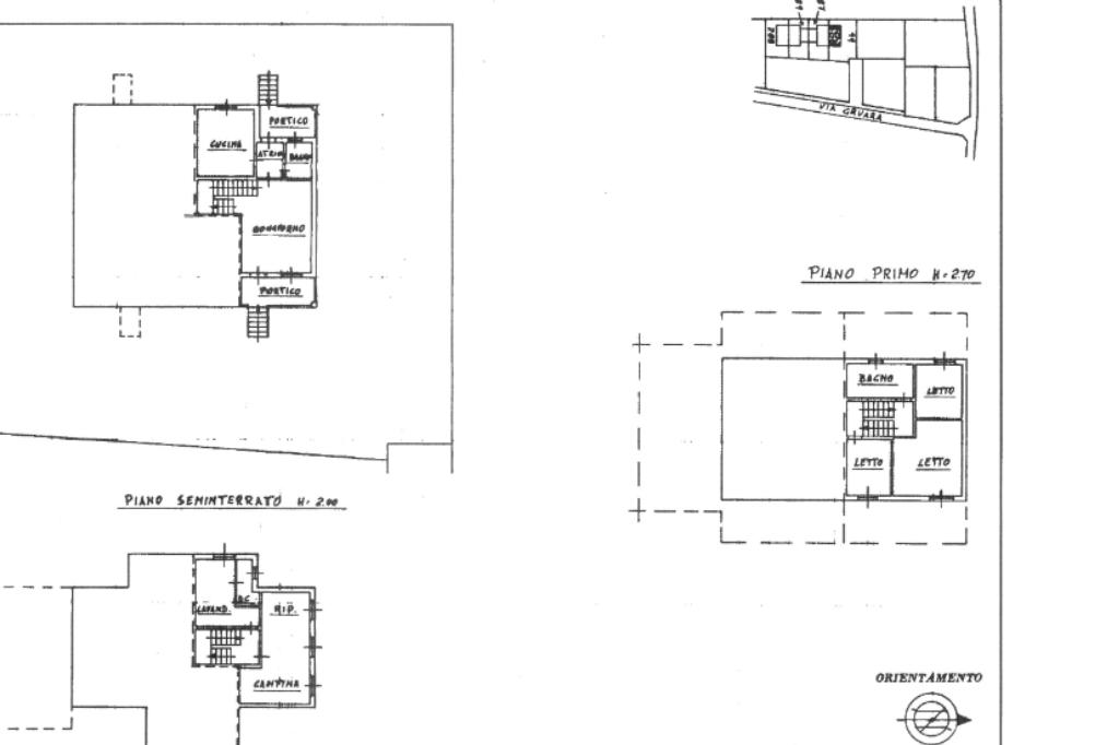
POVIGLIO- VILLETTA A SCHIERA DI TESTA CON CORTILE SU TRE LATI.

Siamo in un quartiere residenziale del paese, popolato da soluzioni per lo più indipendenti o da piccoli condomini tutti di recente edificazione.

L'immobile è stato edificato nel 1989, ma essendo rivestito completamente a mattoncini faccia a vista risulta ancora attuale, ed è un oggetto davvero interessante, complici il cortile completamente porticato ed il giardino che circondano tutta l'abitazione.

La casa gode di una tripla esposizione nord-est-ovest e si estende su tre livelli, tutti ben organizzati e serviti ognuno da un servizio dedicato.

Al piano rialzato troviamo l'ingresso che da sul soggiorno, vi è la cucina separata ed abitabile, il primo bagno e due loggie che danno sul giardino.

Attraverso la scala interna raggiungiamo il livello superiore dove troviamo la zona notte, nello specifico tre camere, due matrimoniali e una singola ed un secondo bagno.

Al piano seminterrato troviamo la zona dei servizi composta da taverna con cucina, lavanderia, un altro bagno ed il garage.

Accessoriata di aria condizionata, zanzariere, camino, caldaia a condensazione nuova, depuratore con sale nuovo, impianto di riscaldamento in rame, infissi in legno con doppio vetro, pozzo e doppio posto auto coperto.

PER MAGGIORI INFORMAZIONI O FISSARE UN APPUNTAMENTO CHIAMACI AL 0522.1963669

Mostra tutto

Nelle vicinanze

Trasporto pubblico Trasporto pubblico
Trasporto pubblico
700 m
Ricariche auto elettriche Ricariche auto elettriche
EnelX Poviglio
850 m
Scuole Scuole
Scuole
890 m
Farmacia Farmacia
Farmacia
570 m
Parafarmacia Conad
1,1 Km
Supermercati Supermercati
Conad
1,1 Km
Negozi Negozi
Negozi
670 m
Il Punto - Sigma
2,6 Km
Bar Bar
Bar
750 m
Circolo Arci Kaleidos
1,0 Km
Ristoranti Ristoranti
Ristoranti
1,1 Km
Ristorante La Barrique Wine House
2,5 Km
Mostra tutto

Caratteristiche

Rif.:
61122395
Piano:
3 di 3 (Piano su più livelli)
Box:
1
Posti auto:
2
Balconi:
1
Terrazzi:
1
Mostra tutto
Prezzo Prezzo
€ 240.000
Rata mutuo Rata mutuo
€ 1.102 / mese
Spese annue Spese annue
€ 0
Proponi il tuo prezzoProponi il tuo prezzo

Classe Energetica

F
F
F
F
F
F
F
F
F
EP globale non rinnovabile:
220.00 kW h/m² anno
EP globale rinnovabile:
220.00 kW h/m² anno
EP invernale del fabbricato:
EP estiva del fabbricato:
Anno di costruzione:
1989
Riscaldamento:
Autonomo
Tipo impianto:
A radiatori
Tipo alimentazione:
Metano

Ti interessa visionare l'immobile?

Fissa un appuntamento  Fissa un appuntamento

Richiedi informazioni

* Questi campi sono obbligatori

Calcola il tuo mutuo

Semplice e senza impegno
Anticipo

( % )
Mutuo

( % )

pochi semplici passi

inserisci i tuoi dati
Questionario completato
Grazie per aver richiesto un appuntamento senza impegno con un nostro Consulente del Credito e Assicurativo.

Hai inserito correttamente tutti i dati necessari e a breve riceverai una e-mail con un link da convalidare per inviare i tuoi dati.
Affiliato
Immobiliare Omega Srl
Via XXV Aprile, 17 42024 Castelnovo Di Sotto (RE)

Il nostro staff


  • Fabio Valentini
    Affiliato

  • Sofia Carraro
    Collaboratrice

  • Piero Ruffino
    Affiliato
Via XXV Aprile, 17 42024 Castelnovo Di Sotto (RE)
Zona: Castelnovo di Sotto-Poviglio-Campegine-Gattatico
Mostra su mappa
Orari: Dal lunedì al venerdì dalle ore 9 alle ore 13 e dalle ore 15 alle ore 20. Sabato dalle ore 9 alle ore 13 e dalle ore 15 alle ore 18
Affiliato
Immobiliare Omega Srl
Via XXV Aprile, 17 42024 Castelnovo Di Sotto (RE)

2025 Tecnocasa Franchising S.p.A. - P. IVA 08365160152 - Via Monte Bianco 60/A 20089 Rozzano (MI). Ogni agenzia ha un proprio titolare ed è autonoma. Privacy policy | Policy utilizzo | Cookie policy